Startseite
Anfrage
Anleitungen
Beispiele – Fotos
Kontakt
Prospekte
Startseite
Anfrage
Anleitungen
Beispiele – Fotos
Kontakt
Prospekte
Deckenhohe Türen
Eck-Sondertüren
Schiebetüren
Falt-Schiebetür
Grifflose Tapetentüren
Spiegeltüren
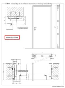
Türen mit sichtbaren Holzzargen
Kabinentüren
Pivot-Türen
Zargenlose Glastüren
Beidseitig wandbündige Tür E-102
Brandschutztüren
Türen mit sichtbaren Holzzargen
technische-zeichnung